Les décanteurs friwa®-sep D retiennent les particules de sable et de boue liées aux eaux usées. Ils sont utilisés en amont des séparateurs d’hydrocarbures. Avant que les eaux usées contenant de l’huile ne soient traitées dans un séparateur d’hydrocarbures, elles doivent être soumises à un pré-nettoy...
Les décanteurs friwa®-sep D retiennent les particules de sable et de boue liées aux eaux usées. Ils sont utilisés en amont des séparateurs d’hydrocarbures. Avant que les eaux usées contenant de l’huile ne soient traitées dans un séparateur d’hydrocarbures, elles doivent être soumises à un pré-nettoyage. C’est ce qui se passe dans nos décanteurs friwa®-sep. Les particules de sable et de boue s’y déposent. De plus, la vitesse d’écoulement des eaux usées diminue dans le décanteur, ce qui favorise le processus d’épuration.
Le décanteur apaise les eaux usées
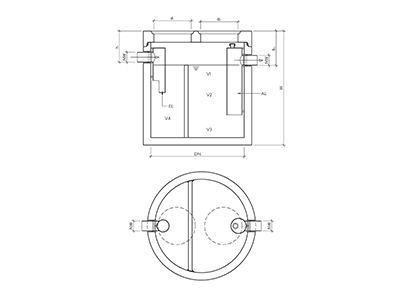
Un décanteur suffisamment grand est prescrit en amont de chaque séparateur d’hydrocarbures. En effet, les eaux usées contenant des hydrocarbures contiennent également du sable, de la boue et des sédiments qui doivent être éliminés avant le séparateur d’hydrocarbures. Un décanteur friwa®-sep D a précisément pour effet de retenir les matières solides et ce, selon un principe simple: à l’entrée de la cuve en béton sans joints, la surface des eaux usées produites s’agrandit. Cela ralentit la vitesse de passage de l’eau. Le temps de séjour dans le décanteur friwa®-sep D est ainsi prolongé à environ 120 secondes. En combinaison avec la force de gravité, cela entraîne une sédimentation des matières solides. Les particules de sable et de boue tombent dans le compartiment à boue.
Demandez conseil à nos spécialistes
Nos décanteurs friwa®-sep D amorcent la séparation des eaux usées huileuses avant même le séparateur d’hydrocarbures. De plus, le décanteur compense les différences de température et les variations de débit d’alimentation. Il est possible de lui adjoindre une fosse de débourbage friwa®-sep SG en amont. Elle effectue une première séparation grossière des eaux usées. Le décanteur est ainsi moins sollicité et peut être dimensionné plus petit. L’entretien, la vidange et le nettoyage de nos décanteurs friwa®-sep D doivent être effectués à intervalles réguliers. Vous trouverez des informations détaillées dans la documentation technique sur la technique de traitement des eaux usées friwa® ou auprès de nos spécialistes expérimentés.